5/180 South Creek Road, Wheeler Heights

Leased
$46,000 + GST Net
2

Fantastic Retail Opportunity in Brand New Complex

Retail
81m2
Commercial Licensee/Director in Charge

Licensed Commercial Sales & Leasing Agent

Location

Fantastic Retail Opportunity in Brand New Complex

Retail
81m2

Location

Fantastic Retail Opportunity in Brand New Complex

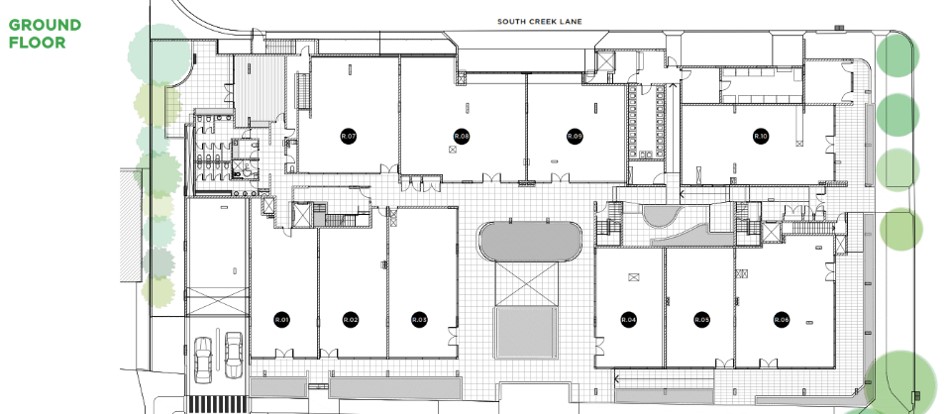
Shop 5 is 81sqm plus 14sqm of outdoor space, and 13sqm of storage. This boutique retail shop is available for lease in Livistona, an exclusive development of 39 apartments and 10 retail shops located in the heart of Wheeler Heights, across from St. Matthew’s Farm playing fields.

This boutique shop would suit a variety of retail or professional businesses including boutiques, chiro’s, solicitors, and restaurants/cafes, catering to the residents of the complex as well as the surrounding community.

* Internal area 81sqm; 14sqm outdoor space plus 13sqm storage
* Brand new local retail centre with 10 shops
* Part of Livistona Shop Top development
* Trade with residents and surrounding local community
* Great for restaurants & cafes
* Grease trap & exhaust provisions available
* 2 car spaces plus options for customer parking
* Estimated per annum outgoings $4,492 approx.

Positioned on South Creek Road in Wheeler Heights, minutes from Collaroy, Dee Why, and the beach, this growing Northern Beaches suburb is conveniently located 30 minutes from the city, with easy access to Westfield Warringah Mall and Manly. This brand new development is nestled between Narrabeen Lake, Cromer Golf Course, Dee Why Lagoon and Dee Why Beach in the centre of Sydney’s Northern Beaches.

Call Vincent West or Oliver Rosati today for your inspection.

**All rentals are per annum and quoted areas/measurements are approximations only**

"*" indicates required fields

This field is for validation purposes and should be left unchanged.

Interested in this property?

Please complete the form below and one of our friendly team will be in touch soon.

Subscribe Consent
Email