1 (shop) /180 South Creek Road, Wheeler Heights

Leased
Sale $850,000 + GST / Lease $51,000 + GST Net
2

Off The Plan Boutique Retail Shop

Retail
92m2
Commercial Licensee/Director in Charge

Location

Off The Plan Boutique Retail Shop

Retail
92m2

Location

Off The Plan Boutique Retail Shop

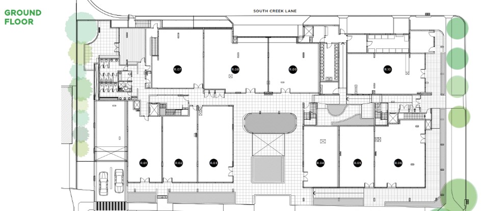
Shop 1 is 92sqm plus 10sqm of outdoor space, and 5sqm of storage. This boutique retail shop is available for sale or lease in Livistona, an exclusive development of 39 apartments and 10 retail shops located in the heart of Wheeler Heights, across from St. Matthew’s Farm playing fields. This brand new development will be nestled between Narrabeen lake, Cromer Golf Course, Dee Why Lagoon and Dee Why Beach in the centre of Sydney’s Northern Beaches.

Perfect for investors or owner occupiers, this boutique shop would suit a variety of retail or professional businesses including boutiques, chiro’s, solicitors, and restaurants/cafes, catering to the residents of the complex as well as the surrounding community.

Features:
* Internal area 92sqm; 10sqm outdoor space plus 5sqm storage
* Brand new local retail centre with 10 shops
* Part of Livistona Shop Top development
* Trade with residents and surrounding community
* Great for restaurants & cafes
* Grease trap & exhaust provisions available
* Parking for owners and customers
* Suitable for owner occupiers or astute investors
* For sale: $850,000 + GST
* For Lease: $51,000 + GST Net
* Estimated outgoings $90/sqm per annum including water, council & strata
* Full depreciation available for a new building
* Expected completion 2nd quarter 2020

Location:
Positioned on South Creek Road in Wheeler Heights, minutes from Collaroy, Dee Why, and the beach, this growing Northern Beaches suburb is conveniently located 30 minutes from the city, with easy access to Westfield Warringah Mall and Manly.

Call Vincent West on 0403 444 000 today for your inspection.

**All prices are per annum and quoted areas/measurements are approximations only**

"*" indicates required fields

This field is for validation purposes and should be left unchanged.

Interested in this property?

Please complete the form below and one of our friendly team will be in touch soon.

Subscribe Consent
Email