64 Balgowlah Road, Balgowlah

Sold
Contact Agent

Freestanding Mixed Use Investment with Multiple Income Streams

Retail
706m2
1,300m2
Licensed Commercial Sales & Leasing Agent

Licensed Commercial Sales & Leasing Agent

Location

Freestanding Mixed Use Investment with Multiple Income Streams

Retail
706m2
1,300m2

Location

Freestanding Mixed Use Investment with Multiple Income Streams

Upstate Commercial is pleased to present a rare mixed use freehold opportunity in one of Balgowlah’s most prominent and tightly held corridors. Adjoining Bunnings and surrounded by a well established mix of national retailers and destination homeware showrooms, including Freedom and Coco Republic, the property benefits from exceptional exposure and strong income diversity. The precinct is further supported by health and wellness centres, cafes, coffee roasters, and nearby Woolworths and Aldi on Roseberry Street. Ideally positioned within close proximity to the B-Line transport corridor, providing direct and efficient connectivity to Sydney CBD and surrounding Northern Beaches suburbs.

The building is configured across three levels, with multiple access points enhancing flexibility across commercial and residential components. This highly versatile property comprises the well known Ray’s Pizza restaurant, featuring indoor, outdoor and alfresco dining, grease trap, ventilation and a full height glass frontage, together with warehouse accommodation at the rear.

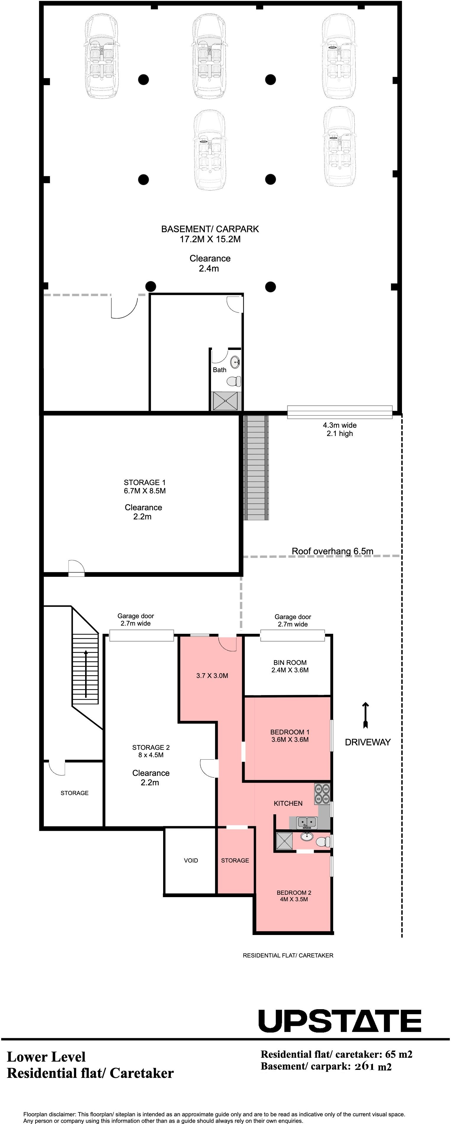
The property also includes two separate residential components, being a primary apartment located above the restaurant and a self contained caretaker’s accommodation on the lower level.

The combination of commercial and residential uses, supported by generous off street parking, provides a flexible and adaptable investment with multiple future pathways.

The property has been rewired and is equipped with smart meters, enhancing efficiency, reliability, and long-term operational performance. The building configuration allows for a broad range of tenant profiles, enhancing its long term appeal to investors seeking income diversity.

The property is currently leased across a mix of commercial and residential uses, providing diversified holding income. A number of the existing tenancies are returning below estimated market levels, offering scope over time to increase rents as leases expire and are reviewed.

In addition, the property presents further income enhancement potential through under utilised areas. Two storage areas are currently not rented, providing an immediate opportunity to generate additional rental income. The basement level comprises approximately 261sqm and includes a bathroom and shower facility, with only one car space currently allocated within this area. The balance of this space offers flexibility for improved income utilisation, contributing to future rental growth potential.

A summary of estimated market rentals are outlined in this document, demonstrating the opportunity over time to reversion of existing rents to market levels and enhance the overall income profile.

With its prominent frontage, flexible building composition, diversified income base, and identifiable rental upside, 64 Balgowlah Road presents an exceptional opportunity to secure a value add, income producing asset in one of the Northern Beaches’ most active retail and service corridors.

The property also benefits from its location within a highly sought after residential catchment, further reinforcing its long term investment appeal.

* Freestanding mixed use with warehouse, retail, restaurant, and residential components
* 15.24m street frontage
* 5+ off street undercover parking spaces – 1 allocated to the apartment
* 3 Phase power
* Prime main road position with exceptional passing traffic
* Home to the well known Ray’s Pizza, featuring indoor and outdoor dining
* 2 separate residential dwellings – main apartment above the restaurant plus caretaker’s accommodation
* Retail shop with modern glass frontage and excellent signage exposure
* Attractive off street parking
* Long term tenants providing secure, diversified income
* Opportunity over time to increase rents to current market rates
* Strategic position in one of Balgowlah’s most desirable residential and commercial pockets
* Rare opportunity to acquire a tightly held site with multiple value-add angles

Surrounded by a thriving mix of national retailers and long standing local businesses, 64 Balgowlah Road sits within one of the Northern Beaches most reliable commercial precincts. The strong demographic profile and continuous flow of foot and vehicle traffic create an attractive environment for a wide range of operators, enhancing tenant retention and long term income stability.

Call Paul Cunningham on 0413 161 661 & Saxon Stonehouse 0408 033 330 today to arrange your inspection.

***All areas/measurements are approximate. It is up to purchasers to conduct their own investigations regarding any approvals required by governing authorities***

"*" indicates required fields

This field is for validation purposes and should be left unchanged.

Interested in this property?

Please complete the form below and one of our friendly team will be in touch soon.

Subscribe Consent
Email