12/16-22 Cross Street, Brookvale

Leased
LEASED Contact Agent
8

Price Drop. Outstanding Value. Must be leased

Warehouse
537m2
Licensed Commercial Sales & Leasing Agent

Location

Price Drop. Outstanding Value. Must be leased

Warehouse
537m2

Property Features

  • Air Conditioning
  • 3 Phase Power
  • Kitchenette
  • Roller Door Access
  • Toilet Facilities

Location

Price Drop. Outstanding Value. Must be leased

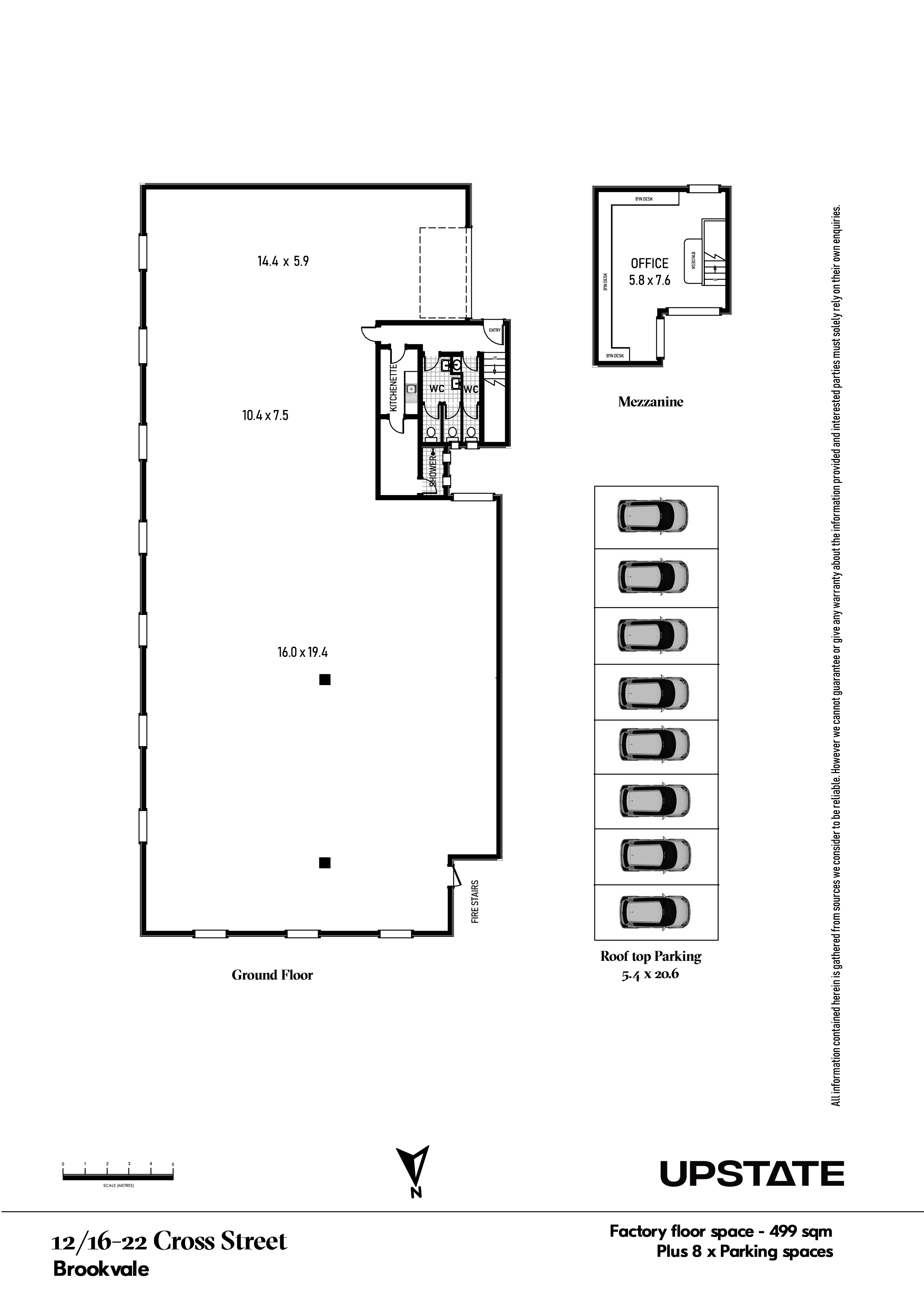
Total area 537sqm. Centrally Located Warehouse at an unbelievable rent.
This warehouse is suitable for many businesses needing bulky goods storage, production and or distribution. It boasts high clearance, 499sqm of factory floor space and parking for 8 vehicles. With ample parking, an office area where you can keep administration functions separate from the factory floor activities, 3 phase power, 5 metres high clear, and roller shutter entry, this factory is ready for your business.

* Total area 537sqm
* Warehouse area 499sqm
* Office area 38sqm
* 8 rooftop car spaces
* Excellent natural light
* 5m clearance
* 3 Phase power
* Male & Female amenities
* Kitchenette
* Shower facilities
* 1 Minute walk to Warringah Mall

Located on Sydney’s Northern Beaches in Brookvale. Literally a 1 minute walk to the thriving Warringah Mall with all its amenities including banks, Australian post, the new B -Line Bus service and close to both Pittwater Rd and Warringah Road, providing easy access to the city and the rest of Sydney.

***All rentals are per annum and areas/measurements are approximations***

"*" indicates required fields

This field is for validation purposes and should be left unchanged.

Interested in this property?

Please complete the form below and one of our friendly team will be in touch soon.

Subscribe Consent
Email