Belrose
58/14 Narabang Way
Leased
LEASED
62 sqms
Key details
Property Type
Offices
Highlights
Exceptionally Priced | Functional North Facing Office in Belrose
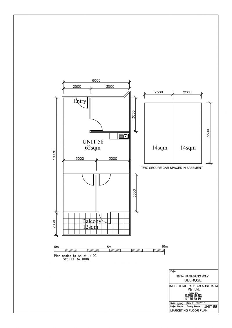
This 62sqm open-plan office offers a versatile and well-presented workspace, ideal for a range of professional uses. The functional layout includes a meeting room, open-plan reception/office area and two private offices. Additional features include ducted air conditioning, an internal kitchenette, two secure car spaces and a 12sqm north-facing balcony that fills the space with natural light.
This 62sqm open-plan office offers a versatile and well-presented workspace, ideal for a range of professional uses. The functional layout includes a meeting room, open-plan reception/office area and two private offices. Additional features include ducted air conditioning, an internal kitchenette, two secure car spaces and a 12sqm north-facing balcony that fills the space with natural light.
Create a calm, modern and professional environment to impress clients and support staff productivity.
* Office area: 62 sqm
* Balcony: 12 sqm
* 2 Secure car spaces
* Practical fit-out
* Ducted air-conditioning
* Internal kitchenette
* Floor to ceiling windows ensure abundant natural light
* North facing office
* Security building
* Shared M & F and disabled amenities with shower
* Moments to Belrose Bunnings and Super Centre
* Zoning: SP4 Enterprise
Premier building on the high side of Narabang Way with quick access to Forest Way and Mona Vale Road providing an easy commute to Mona Vale, Brookvale, Chatswood, North Ryde and Hornsby.
Call Saxon Stonehouse 0408 033 330, Tom Wheen 0452 449 906 or Paul Cunningham 0413 161 661 today for your inspection.
***All areas/measurements are approximations. It is up to lessees/purchasers to conduct their own investigations regarding any approvals required by governing authorities***
Create a calm, modern and professional environment to impress clients and support staff productivity.
* Office area: 62 sqm
* Balcony: 12 sqm
* 2 Secure car spaces
* Practical fit-out
* Ducted air-conditioning
* Internal kitchenette
* Floor to ceiling windows ensure abundant natural light
* North facing office
* Security building
* Shared M & F and disabled amenities with shower
* Moments to Belrose Bunnings and Super Centre
* Zoning: SP4 Enterprise
Premier building on the high side of Narabang Way with quick access to Forest Way and Mona Vale Road providing an easy commute to Mona Vale, Brookvale, Chatswood, North Ryde and Hornsby.
Call Saxon Stonehouse 0408 033 330, Tom Wheen 0452 449 906 or Paul Cunningham 0413 161 661 today for your inspection.
***All areas/measurements are approximations. It is up to lessees/purchasers to conduct their own investigations regarding any approvals required by governing authorities***
Contact the agent
Be the first to know about new
properties that will interest you
before they hit the market
Property & real estate news
Understanding the Northern Beaches like the back of our hands allows us to offer impeccable levels of service and elicit
the most favourable sale price (we also know the best local surf breaks, if you’re interested).
the most favourable sale price (we also know the best local surf breaks, if you’re interested).
Upstate Investors Night 2025: An Evening of Insight, Connection and Growth
22 October 2025
First Time in the Market? Here’s How to Navigate the Spring Real Estate Rush
16 September 2025
