Dee Why
16 The Strand
Key details
Highlights
DA Approved Restaurant/Bar Opportunity on Dee Why Beachfront
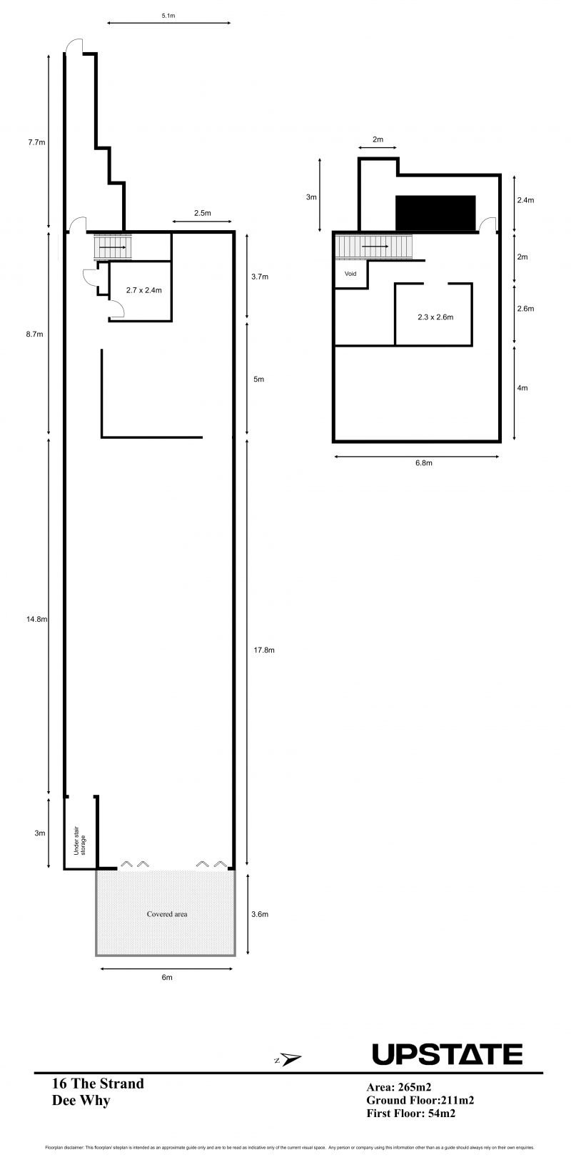
* Total lettable area: 265m2
* Including undercover 20m2 courtyard, perfect for alfresco dining options
* Total ground floor with courtyard being spread over 211m2
* First floor with amenities and storage equalling 54m2
* Approved for 70 seats (inside/outside + potentially more STCA)
* Establish your business amongst other well known, successful operators such as; Stella Blu, Girdlers, Corretto, Chill Bar, French Basket, Top BBQ, Royal Copenhagen and many more
* Full glass floor to ceiling shop front with bifold doors
* Indoor and outdoor dining plus alfresco council seating (STCA)
* Excellent signage and exposure
* Rear lane access – ideal for services and deliveries
* Approved for separate Male, Female, disabled toilets inside and additional storage/office room upstairs
* Previously traded as 'On Shore Café/Restaurant'
DA Information
* DA2023/0431
* Seating Capacity
* 61 Indoor
* 9 Outdoor under awning
* 14 Outdoor for DA (STCA) on council path
* 84 Total
Located opposite busy Dee Why Beach, one of the most popular beaches on Sydney's Northern Beaches, with breath taking water views of Dee Why and Long Reef panorama. The property is unbeatably placed on the doorstep amongst other cosmopolitan cafes, restaurants, shopping options and express city buses. With Dee Why gaining over 1000 new dwellings in the last few years it is fast becoming the cosmopolitan centre of the Northern Beaches and is providing the local business more and more patrons every week. Adding all these locals to the ever-increasing tourist trade your business is sure to thrive in this beachside location.
For more information or to inspect, please contact Oliver Rosati on 0428 877 888 or Vincent West on 0403 444 000.
**All rentals are per annum and quoted areas/measurements are approximations only**
Contact the agent
Dee Why Neighbourhood Profile
As if having the Northern Beaches most iconic beach – Manly – just around the corner wasn’t enough, Dee Why also boasts its own local stretch of pristine coastline perfect for families to enjoy as part of their day to day life. With cosmopolitan restaurants and retail all around and plenty of fantastic schools to help the local kids thrive, Dee Why is growing every day into the destination along the Northern Sydney coast.
Be the first to know about new
properties that will interest you
before they hit the market
Property & real estate news
the most favourable sale price (we also know the best local surf breaks, if you’re interested).
Upstate Investors Night 2025: An Evening of Insight, Connection and Growth
22 October 2025
First Time in the Market? Here’s How to Navigate the Spring Real Estate Rush
16 September 2025
